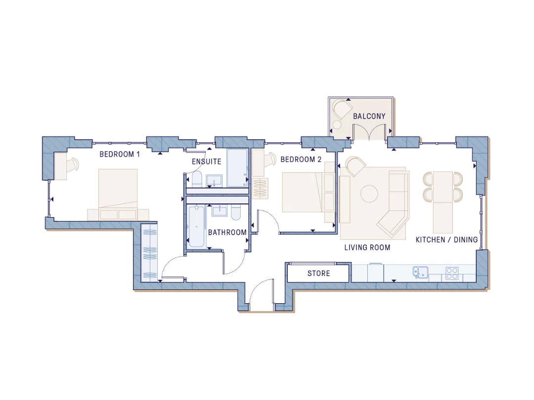
Living Space
Kitchen
Bedrooms
Bathroom & En-Suites
Communal Areas
*Speak to our New Homes Consultants for more information.
Expected Move-In Date:
Move-in ready.
Tenure:
Leasehold with 250 years remaining.
Building Service Charge:
Estimated at £2,803 per annum.
Ground Rent:
None.
Council Tax Band:
To be determined by South Gloucestershire Council. Learn more about UK Council Tax charges and bands.
Stamp Duty Band:
Varies due to personal circumstances. Read a guide to UK Stamp Duty.
Energy Rating:
Predicted ‘B’. Discover what makes homes at Brabazon more energy efficient.
Warranty:
Two years from completion date, or 10 years under the NHBC Buildmark Guarantee.
Find out what life could be like as a resident of Bristol's most exciting new neighbourhood!
Complete the form to book your visit to the Sales Centre and Show Homes at Brabazon. Our New Homes Consultants will contact you by phone and/or email to confirm your appointment.
We'll also send you our monthly newsletter and other occasional updates about Brabazon by email and by phone. You can unsubscribe at any time. Please see our Privacy Policy for details.
Property prices, availability and estimated completion dates are correct at the time of publishing but remain subject to change.
The information and images provided here should not be relied upon as accurately showing or describing any of the specific matters described by any order under the Consumer Protection Regulations 2008 and does not constitute a contract, part of a contract or warranty.
While all information has been provided in good faith and every effort has been made to ensure accuracy, YTL Developments Ltd and YTL Homes Ltd retain the right to change any and all details of the development, including the site layout, floorplans, materials and product specifications within each property at any time.
All computer generated images (CGIs) and stock photography are indicative only. Prospective purchasers should satisfy themselves with the final details of any property, by inspection or otherwise, at the point of reservation.